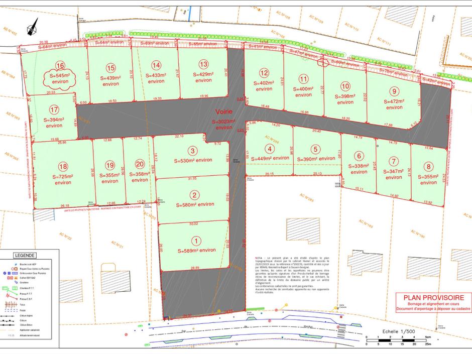
Terrain T 0 - 447m² à Iffendic 60 200 € Réf. : 048-V706M Previous Next Présentation du bien IFFENDIC - Proche centre-ville, au sein d'un nouveau lotissement, terrain à bâtir de 447 m² viabilisé. Libre de constructeur. Les informations sur les risques auxquels ce bien est exposé sont disponibles sur le site Géorisques : www. georisques.gouv.fr Informations complémentaires Type de bien Terrain Surface 447m² * Surface du terrain 447m² * Pourcentage honoraires 4.33% Prix hors honoraires 57 700 € Prix 60 200 € Réference 048-V706M Information non contractuelles. * Surface approximative Dépenses énergétiques A B C D E F G logement très performant logement extrêmement peu performant Non requis A B C D E F G emissions de CO₂ très importantes peu d'émission de CO₂ Non requis Simulation financière Montant de votre prêt Montant du prêt Montant du prêt Durée de votre prêt Durée du prêt Durée du prêt Taux d'intérêt avant négociation Taux d'intérêts Taux d'intérêts Calculer vos mensualités Montant du prêt Durée du prêt Mensualités Recharger Contactez-nous Demande d'informations Site de Montfort-sur-Meu 6, rue du Tribunal BP 96229 35162 Montfort-sur-Meu 02.99.09.82.82 [email protected] Horaires d'ouverture Du Lundi au Vendredi Accueil physique : de 09h à 12h et de 14h à 18h Accueil téléphonique : de 9h30 à 12h et de 14h30 à 18h Sauf le Mercredi matin: fermé Samedi et Dimanche: fermé - Civilité -MonsieurMadameMademoiselle Objet de votre demande *Négociation immobilièreLocation / GestionJuridique GénéralAutre Bonjour, Je souhaiterais obtenir plus de renseignements sur le bien "Vente terrain de 447 m2 - pièce(s) à Iffendic - réf. 048-V706M" vu sur votre site (Réf. 048-V706M). Pouvez-vous me contactez ? https://www.moins-sidneydurand-vachon-notaires.fr/vente/terrain/iffendic/vente-terrain-de-447-m2-pieces-iffendic-ref-048-v706m * champs obligatoires J'accepte l'utilisation de mes données * En soumettant ce formulaire, j'ai bien pris connaissance que les informations saisies seront exploitées dans le cadre de la gestion de ma demande. Voir les mentions légales Envoyer votre demande Laisser ce champ vide Partager Partager sur Facebook Partager sur Twitter Partager sur LinkedIn Partager par mail